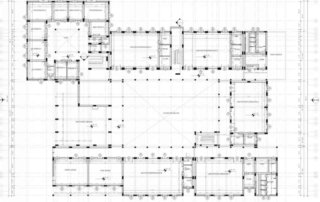
Reinforced Concrete Design & WSD.
Structural Design Experts!!.
We Do choose what is the best practice material of your building, ensure your RC design is safe & economical.
We have experience in all RC elements designs, such as piles, rafts, short columns, long columns, flat slab, hollow block slab, solid slab, pile cap, all types of footing, prestressed and post tension slab.
ASM uses most common softwares to finalize structural analysis & designs/ drawings such as Sap, Safe, Etabs, Tedds Structure, Mathcad, Microsoft Office, Robot Structure, Revit, Autocad & Autocad Structural Detailing.
Previous projects
ASM usually apply and calculate different loads while structure life cycle and assign all expected load combinations on structure that may affect elements, as well as lateral force wind seismic loads and dynamic effects of earthquick to design safe structure with the minimum cost.
We have Finished and delivered successfully many projects all over the world such as Egypt, Saudi Arabia, Austalia, UK, Canada, USA, Pakistan & UAE as shown on images.
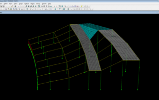
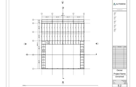
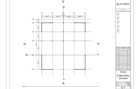
Steel Structure Design & WSD.
Structural Design Experts!!.
We Do choose what is the best practice material of your building, ensure your Steel structure design is safe & economical.
We have experience in all Steel Structure elements/ sections designs, such as columns, rafters, purlins, side girt, slab deck, bracing, base plate, welded connections & bolted connections.
ASM uses most common softwares to finalize structural analysis & designs/ drawings such as Sap, Safe, Etabs, Tedds Structure, Mathcad, Microsoft Office, Robot Structure, Revit, Autocad & Autocad Structural Detailing.
Previous projects
ASM usually apply and calculate different loads while structure life cycle and assign all expected load combinations on structure that may affect elements, as well as lateral force wind seismic loads and dynamic effects of earthquick to design safe structure with the minimum cost.
We have Finished and delivered successfully many projects all over the world such as Egypt, Saudi Arabia, Austalia, UK, Canada, USA, Pakistan & UAE as shown on images.






























































































